A 2 pas du M° Faidherbe - Rue Titon
Petite rue calme et agréable - Quartier animé - ambiance village
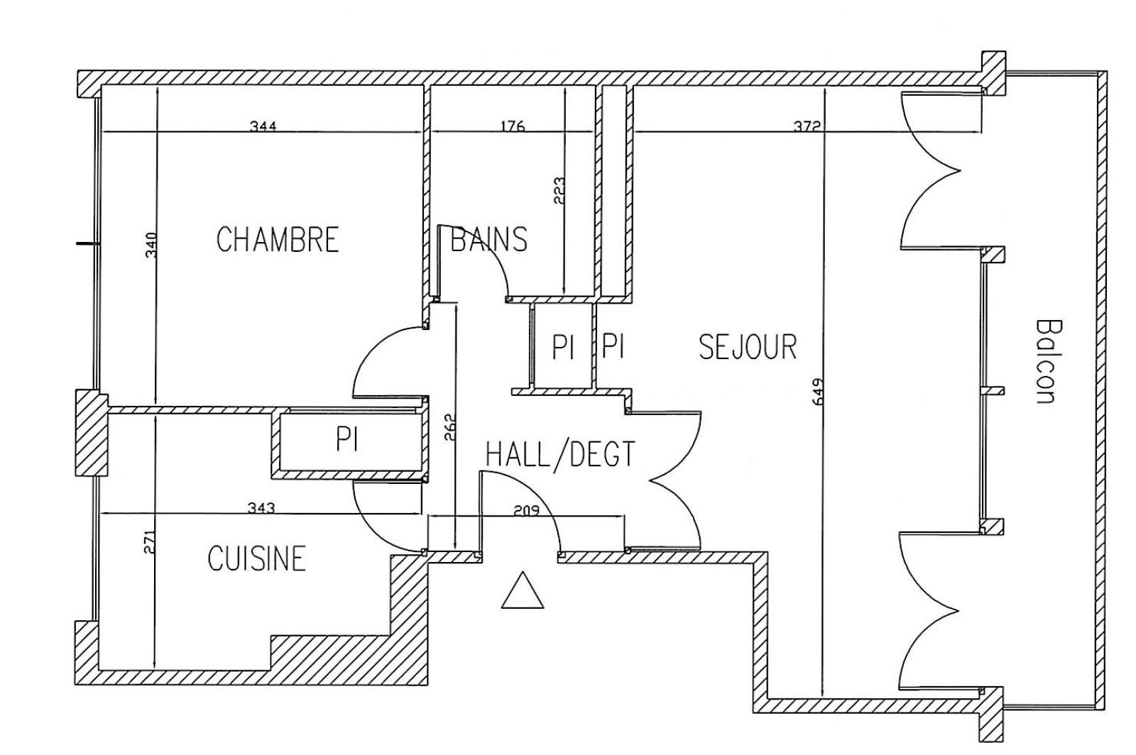
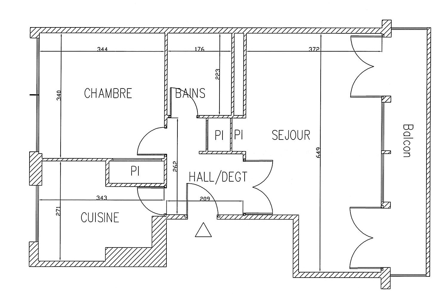
Au 6ème et DERNIER ETAGE d'un immeuble moderne de bon standing sécurisé,
Vaste 2 pièces traversant de 51 M² + 6M2 de BALCON - Séjour 22 M² baigné de lumière et de soleil, sur balcon, une chambre, salle de bains avec wc, cuisine séparée, placards. Excellent plan.
Une cave au sous-sol.
M° Faidherbe, ligne 8 (200 m) / M° Rue des Boulets, ligne 9 (200 m) / M° Reuilly Diderot, lignes 1 - 8 (400 m) / RER A Nation, M° lignes 1-2-6-9 (700 m)
Certaines photos ont été améliorées par l' IA

