Rue de Montreuil - Place Nation 200 mètres ( M° lignes 1-2-6- / RER A)
Résidence de bon standing, ravalée, sécurisée
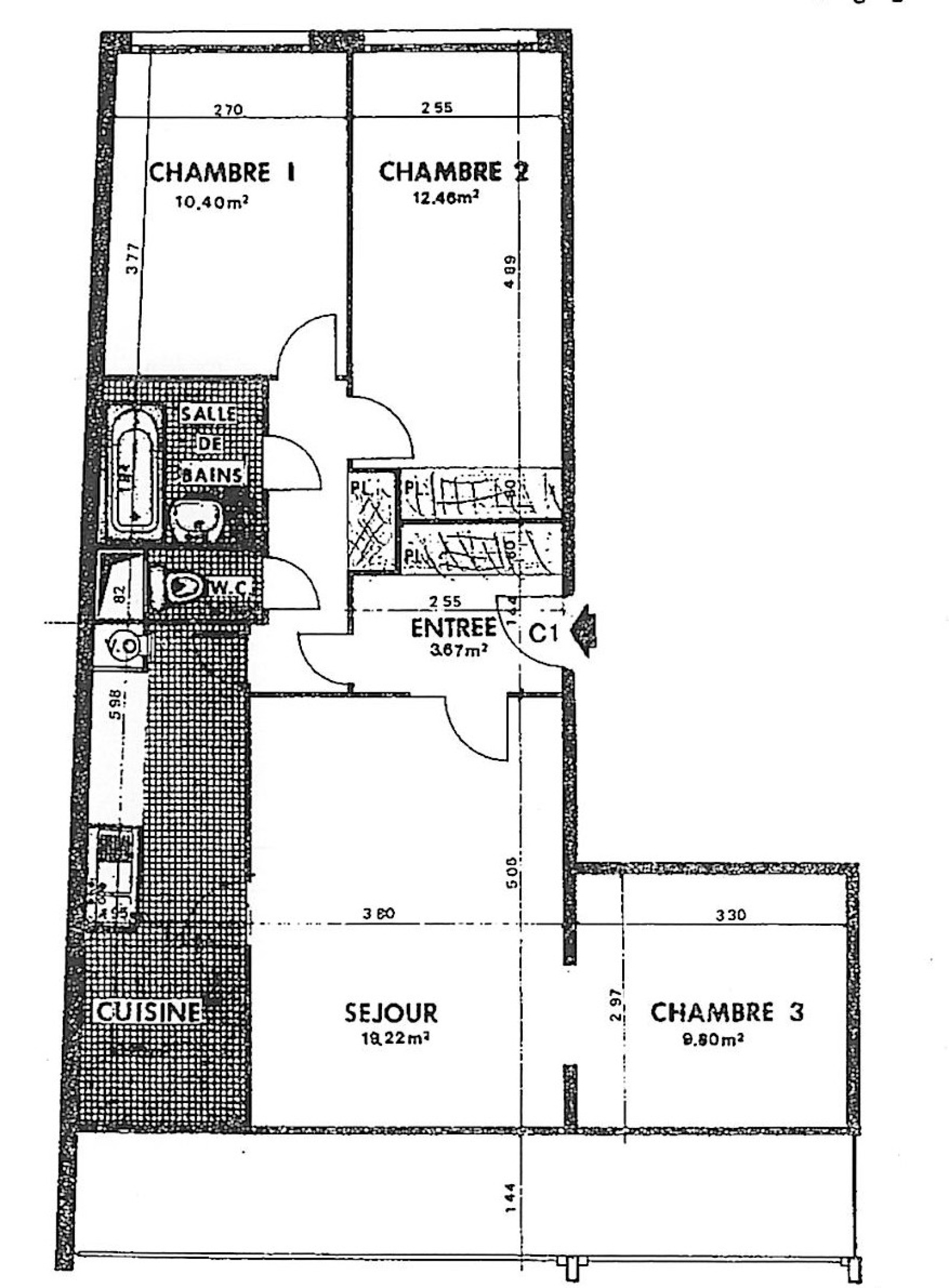
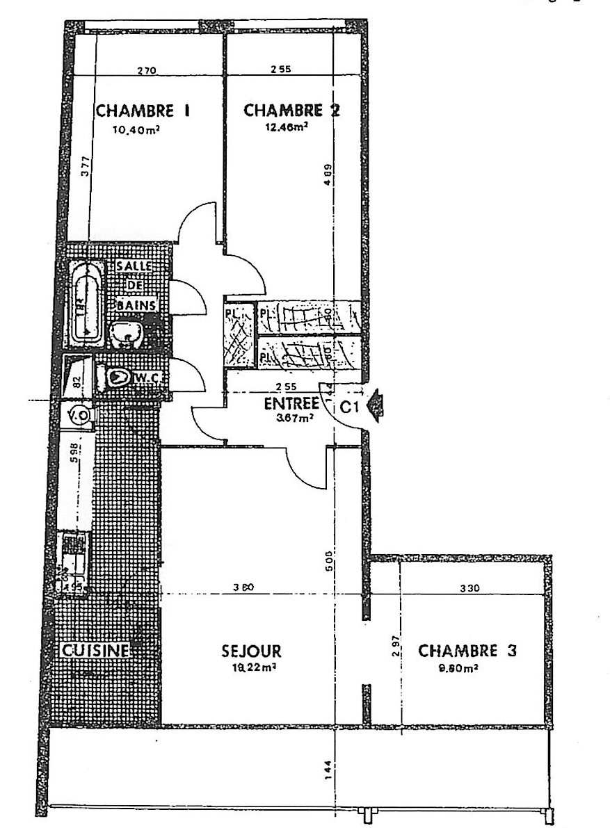
Au 5ème étage, agréable 3/4 PIECES baigné de lumière, grand balcon plein sud, jolie vue sur jardin en cours d'aménagement.
Cuisine ouverte possible- 2 chambres sur jardin (3 chambres possible)- salle de bains, wc séparés, nombreux placards.
Cave et box en sous-sol.

