Page suivante
Page précédente
Paris (75011)

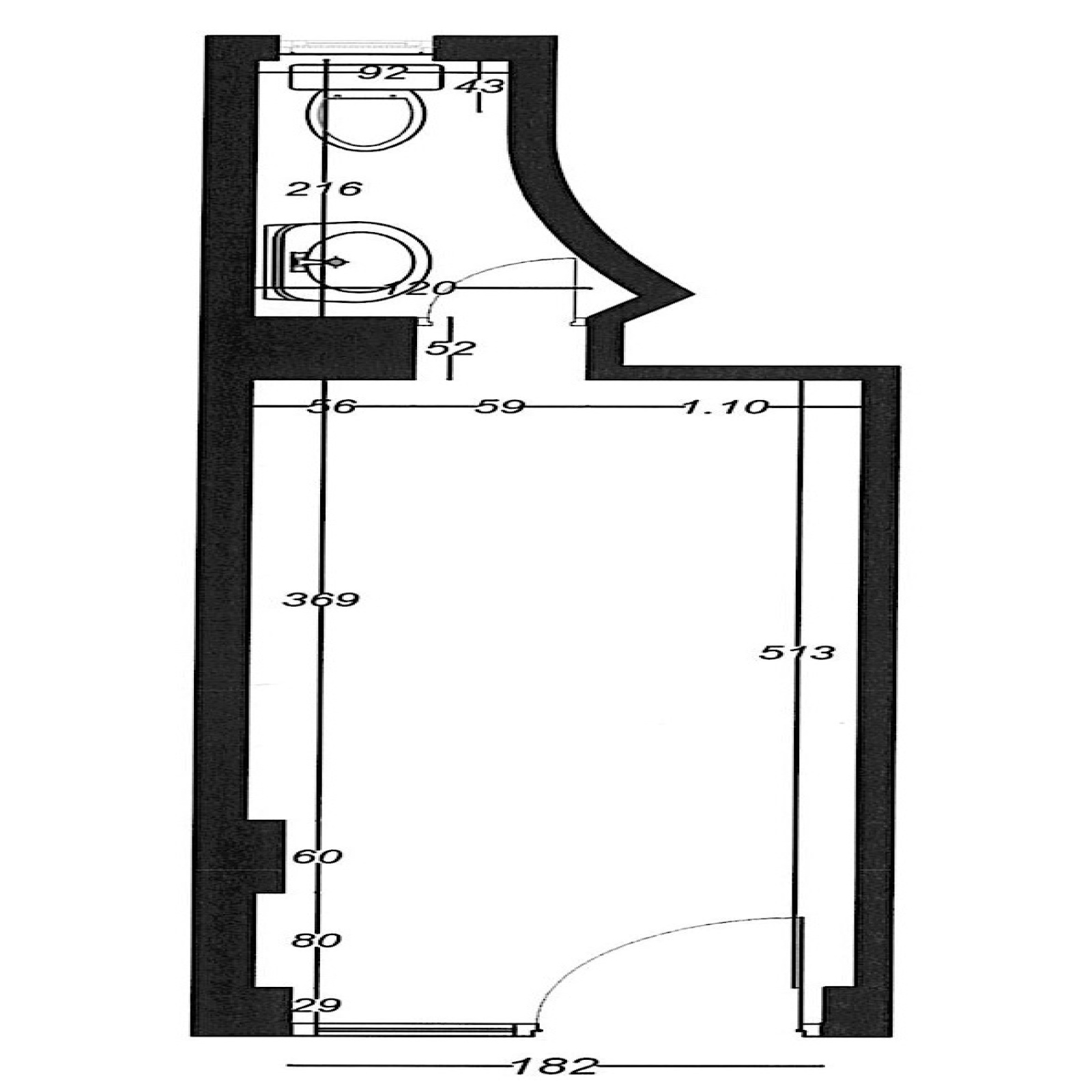
Local commercial 1 pièce(s) 13.85 m²

1
850 € HC*
Réf 119/2

Rue de Charonne, au pied du M° Charonne

Local commercial refait neuf. Une pièce. Wc avec lave-mains.

850 € hors charges / mois + 40 € provisions pour charges / mois.

Bilan énergétique

Diagnostics énergetiques
A propos de ce bien Caractéristiques de ce bien
  • Surface 13,85 m²
  • construit en 1900
  • Chauffage individuel : convecteur (electrique)
  • 1 niveau(x)
  • quartier CHARONNE, Voltaire

Financier

Informations financières
Loyer 850 €
Honoraires charge locataire 3 672 €
Dont état des lieux Non renseigné
Dépot de garantie 2 550 €
Charges locatives (provision donnant lieu à régularisation annuelle) 40 €
Bail COMMERCIAL

* HC : Hors Charges